Добро пожаловать на http://vipplan.ru

Випплан Латвия - это тысячи проектов домов в нашем каталоге!

Вы всегда сможете найти для себя проект дома вашей мечты! Даже если этого не случилось, мы готовы в любую минуту предложить проект индивидуального дома.

Забыли пароль?
Вы еще не регистрировались?

Перейдите по ссылке ниже на страницу регистрации.

Регистрация...

Внимание!!!

В проектную документацию могут быть внесены изменения любой сложности, в соответствии в Вашими пожеланиями!

Полезные статьи

Советы по проектированию дома

Представляем Вашему вниманию несколько советов по проектированию дома. Все что касается выбора участка, размещению дома на участке, подбора проекта на строительство дома, советы по выбору технологии строительства и материалов и т.д....

Искусственный камень

Среди современных материалов, особого внимания заслуживает искусственный камень. Естественность и красота натурального камня очевидна. Но нужно реально оценивать свои возможности и присмотреться именно к искусственному камню, так как сам искуственный камень и стоимость производства работ с ним в Латвии значительно дешевле чем натуральный....

Проекты домов и коттеджей > Каталог проектов домов > Проект индивидуального двухэтажного жилого дома Vg1178

Проект индивидуального двухэтажного жилого дома Vg1178

Проект индивидуального  двухэтажного  жилого дома
Зарегистрируйтесь

Проект № Vg1178


Техническое описание
Общая площадь: 323.72 м2
Жилая площадь: 136.38 м2
Высота здания: 9.56 м
Размеры дома: 21.78м×12.98м
Цокольный этаж: есть
Гараж: есть
Мансарда: есть

Kонструкция
Фундамент: Ленточный
Перекрытия: Деревянные балки
Материал стен: Газобетон

Архитектурный раздел
Конструктивный раздел
АР+КР - 84 000 (Со скидкой 20%)
Проект индивидуального двухэтажного жилого дома с мансардой и подвалом, размерами 21,78 х 12,98 м. Наружная отделка здания – облицовочный кирпич. Цоколь – камень. Вентканалы и дымоходы — клинкерная плитка. Кровля – металлочерепица. Фундамент – ленточный монолитный и свайно-ростверковый (буронабивной). Наружные стены: газобетонные блоки, воздушный зазор, облицовочный кирпич. Внутренние стены и перегородки – каркасные с ГКЛ. Пол первого этажа – пол по грунту. Перекрытие над подвалом — монолитная ж/б плита. Межэтажное перекрытие - по деревянным балкам с использованием теплошумоизоляционных материалов типа «URSA» в межбалочном пространстве. Крыша многоскатная. Окна металлопластиковые, выполненные по индивидуальному заказу.
Генплан застройки участка / Паспорт проекта 7000 руб / 10000 руб
Инженерный раздел (полный) 162000 руб
Смета на строительство 81000 руб
Теплотехнический расчет материалов стен Бесплатно
Стоимость проекта со незначительнми изменениями 96900 руб
Стоимость проекта со средними изменениями* 121200 руб
Стоимость проекта со значительными изменениями** 127700 руб

План цокольного этажа


Помещение 1 — 8,97 м2
Помещение 2 — 4,95 м2
Помещение 3 — 6,80 м2

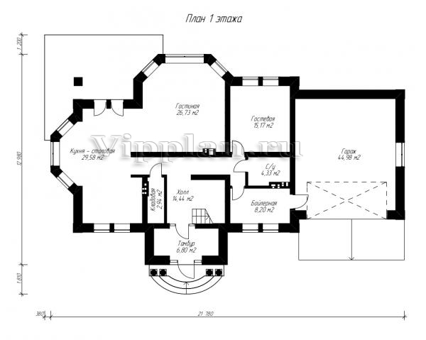
План первого этажа


Тамбур — 6,80 м2
Холл — 14,44 м2
Кладовая — 2,94 м2
Кухня — 29,58 м2
Гостиная — 26,73 м2
Гостевая — 15,17 м2
С/у — 4,33 м2
Бойлерная — 8,20 м2
Гараж — 44,98 м2

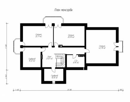
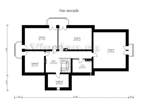
План мансардного этажа


Холл — 21,07 м2
Спальня — 25,71 м2
Спальня — 25,99 м2
Гардероб — 15,32 м2
С/у — 8,94 м2
Гардероб — 10,16 м2
Спальня — 42,78 м2
Проект индивидуального  двухэтажного  жилого дома Проект индивидуального  двухэтажного  жилого дома Проект индивидуального  двухэтажного  жилого дома Проект индивидуального  двухэтажного  жилого дома

Модификации проектов

Внесение изменений и привязка к участку строительства

В любой из проектов от компании VIPplan - Латвия по вашему желанию могут быть внесены изменения в материалы стен, материалы наружной отделки дома, а также будет произведена адаптация проекта под конкретный регион строительства (с учетом грунтов региона, геологических особенностей вашего участка и местных климатических условий) - БЕСПЛАТНО !!! (кроме проектов со скидкой и проектов наших партнеров).

Любой из проектов, размещенных на сайте lv.vipplan.ru мы можем выполнить из требуемых вам строительных материалов: ячеистый бетон (газобетон, пеноблок), керамоблок, кирпич, шлакоблок, бетонный блок, дерево (брус, клееный брус), каркасная технология (деревянный каркас, металлокаркас (ЛСТК)).

Фасад дома и его наружную отделку так же возможно выполнить с применением различных облицовочных материалов: структурной штукатурки, (с утеплителем и без), сайдингом (пластиковый или металлосайдинг), фиброплитами, кирпича.

 
6 Избранные
проекты

Доставка проектов по России: Москва (Московская область), Санкт-Петербург (Ленинградская область), Краснодар, Ростов-на-Дону, Ставрополь, Сочи, Волгоград, Новосибирск, Белгород, Брянск, Воронеж, Саратов, Хабаровск, Астрахань, Нальчик, Владикавказ, Екатеринбург, Тюмень, Самара, Нижний Новгород, Казань, Пермь, Уфа, Челябинск, Красноярск, Ханты-Мансийск, Иркутск, Курган, Оренбург, Омск, Томск, Барнаул, Новокузнецк, Кемерово, Абакан, Чита, Якутск, Южно-Сахалинск, Петропавловск-Камчатский и страны ближнего зарубежья: Белоруссия, Украина, Казахстан