Добро пожаловать на http://vipplan.ru

Випплан Латвия - это тысячи проектов домов в нашем каталоге!

Вы всегда сможете найти для себя проект дома вашей мечты! Даже если этого не случилось, мы готовы в любую минуту предложить проект индивидуального дома.

Забыли пароль?
Вы еще не регистрировались?

Перейдите по ссылке ниже на страницу регистрации.

Регистрация...

Внимание!!!

В проектную документацию могут быть внесены изменения любой сложности, в соответствии в Вашими пожеланиями!

Полезные статьи

Купить готовый проект дома или заказать индивидуальный?

Перед началом строительства дома возникает необходимость в проекте дома и тут встает вопрос: Купить готовый проект дома или заказать индивидуальный на заказ? Каждый из вариантов по своему хорош и имеет как свои плюсы так и минусы...

Применение ленточных фундаментов

Большинство людей никогда не сталкивались с выбором фундамента, а, столкнувшись, не могут определиться с выбором. Ведущие специалисты в области строительства утверждают, что лучшим типом фундамент - ленточный фундамент. Как показывает статистика, ленточный фундамент очень популярен среди жителей нашей страны. ...

Проекты домов и коттеджей > Каталог проектов домов > Проект дома с чердаком и гаражом на две машины Vg1312

Проект дома с чердаком и гаражом на две машины Vg1312

Проект дома с чердаком и гаражом на две машины
Зарегистрируйтесь

Проект № Vg1312


Техническое описание
Общая площадь: 177.45 м2
Жилая площадь: 100.75 м2
Высота здания: 7.38 м
Размеры дома: 15м×19.9м
Кол-во комнат: 4
Цокольный этаж: нет
Гараж: нет
Мансарда: нет

Kонструкция
Фундамент: Стена в грунте
Перекрытия: Деревянные
Материал стен: Газобетон

Архитектурный раздел
Конструктивный раздел
Инженерный раздел
АР+КР - 60 000 (Со скидкой 20%)
АР+КР+ИР - 121 950 (Со скидкой 50%)
Проект индивидуального одноэтажного жилого дома с размерами 15,00 x 19,90 м. Наружная отделка здания – облицовочный кирпич Цоколь – клинкерная плитка Фундамент – стена в грунте (щелевой) Наружные стены запроектированы из: газобетона, утеплителя и облицовочного кирпича Внутренние стены и перегородки – газобетона ,забутовочного кирпича Перекрытие м чердачное – по деревянным балкам с использованием тепло-шумоизоляционных материалов. Пол этажа – пол по грунту. Крыша - двухскатная. Материал кровли – металлочерепица Окна - металлопластиковые, выполненные по индивидуальному заказу.
Генплан застройки участка / Паспорт проекта 7000 руб / 10000 руб
Инженерный раздел (полный) 61950 руб (88500 руб)
Смета на строительство 44250 руб
Теплотехнический расчет материалов стен Бесплатно
Стоимость проекта со незначительнми изменениями 70550 руб
Стоимость проекта со средними изменениями* 83900 руб
Стоимость проекта со значительными изменениями** 87400 руб

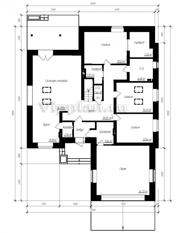
План первого этажа


Гараж — 34,77 кв м
Бойлерная — 5,64 кв м
Спальня — 13,94 кв м
Спальня — 14,53 кв м
С/у — 6,85 кв м
Гардероб — 7,23 кв м
Спальня — 18,03 кв м
Гардероб — 3,57 кв м
С/у — 1,64 кв м
Холл — 19,26 кв м
Кладовая — 2,16 кв м
Кухня — 11,19 кв м
Гостиная — 34,81 кв м
Проект дома с чердаком и гаражом на две машины Проект дома с чердаком и гаражом на две машины Проект дома с чердаком и гаражом на две машины Проект дома с чердаком и гаражом на две машины

Модификации проектов

Внесение изменений и привязка к участку строительства

В любой из проектов от компании VIPplan - Латвия по вашему желанию могут быть внесены изменения в материалы стен, материалы наружной отделки дома, а также будет произведена адаптация проекта под конкретный регион строительства (с учетом грунтов региона, геологических особенностей вашего участка и местных климатических условий) - БЕСПЛАТНО !!! (кроме проектов со скидкой и проектов наших партнеров).

Любой из проектов, размещенных на сайте lv.vipplan.ru мы можем выполнить из требуемых вам строительных материалов: ячеистый бетон (газобетон, пеноблок), керамоблок, кирпич, шлакоблок, бетонный блок, дерево (брус, клееный брус), каркасная технология (деревянный каркас, металлокаркас (ЛСТК)).

Фасад дома и его наружную отделку так же возможно выполнить с применением различных облицовочных материалов: структурной штукатурки, (с утеплителем и без), сайдингом (пластиковый или металлосайдинг), фиброплитами, кирпича.

 
6 Избранные
проекты

Доставка проектов по России: Москва (Московская область), Санкт-Петербург (Ленинградская область), Краснодар, Ростов-на-Дону, Ставрополь, Сочи, Волгоград, Новосибирск, Белгород, Брянск, Воронеж, Саратов, Хабаровск, Астрахань, Нальчик, Владикавказ, Екатеринбург, Тюмень, Самара, Нижний Новгород, Казань, Пермь, Уфа, Челябинск, Красноярск, Ханты-Мансийск, Иркутск, Курган, Оренбург, Омск, Томск, Барнаул, Новокузнецк, Кемерово, Абакан, Чита, Якутск, Южно-Сахалинск, Петропавловск-Камчатский и страны ближнего зарубежья: Белоруссия, Украина, Казахстан