Добро пожаловать на http://vipplan.ru

Випплан Латвия - это тысячи проектов домов в нашем каталоге!

Вы всегда сможете найти для себя проект дома вашей мечты! Даже если этого не случилось, мы готовы в любую минуту предложить проект индивидуального дома.

Забыли пароль?
Вы еще не регистрировались?

Перейдите по ссылке ниже на страницу регистрации.

Регистрация...

Внимание!!!

В проектную документацию могут быть внесены изменения любой сложности, в соответствии в Вашими пожеланиями!

Полезные статьи

Печи и камины в частном доме

Спросите любого человека, и вы поймете, что каждый человек мечтает иметь свой собственный дом, который он сможет обустроить так, как ему хочется. Этот дом будет полон уюта, тепла, света и комфорта, а главное, что, придя с работы, человек сможет запросто отдохнуть у своего очага.  Нет никакой альтернативы перед выбором печи или камина. Эти две вещи не сможет  заменить ни искусственный свет, ни солнечное освещение. Камин и печь, с древности, считаются предметом роскоши. Ни один большой дом не может обойтись без них, поскольку если удастся сесть и посидеть перед этим местом, то долго нельзя будет...

Дом это прекрасное вложение

Современный рынок недвижимости диктует свои правила. Цены на землю и недвижимость в Латвии постоянно растут и вынуждают по-другому смотреть на покупку собственного дома. Не только со стороны получения удобного, благоустроенного жилья, но и со стороны капитализации и инвестировании своих средств...

Проекты домов и коттеджей > Каталог проектов домов > Проект комфортного двухэтажного дома Vg2316

Проект комфортного двухэтажного дома Vg2316

Проект комфортного двухэтажного дома
Зарегистрируйтесь

Проект № Vg2316


Техническое описание
Общая площадь: 276.5 м2
Жилая площадь: 101.79 м2
Высота здания: 9.33 м
Размеры дома: 18.36м×18м
Кол-во комнат: 6
Цокольный этаж: нет
Гараж: нет
Мансарда: нет

Kонструкция
Фундамент: ленточный монолитный
Перекрытия: монолитная ж/б плита
Материал стен: Кирпич

Архитектурный раздел
Конструктивный раздел
Инженерный раздел
АР+КР - 72 000 (Со скидкой 20%)
АР+КР+ИР - 168 950 (Со скидкой 50%)
Проект индивидуального двухэтажного жилого дома с размерами здания 18,36 x 18,96 м. Наружная отделка здания –облицовочный кирпич. Фундамент –ленточный монолитный. Наружные стены -двойной поризованный кирпич с утеплением минеральной ватой, воздушным зазором и отделкой облицовочным кирпичом. Внутренние стены - двойной поризованный кирпич. Перегородки – рядовой кирпич. Пол первого этажа -пол по грунту. Межэтажное перекрытие - монолитная плита. В связи с конструктивными особенностями возможны все виды перекрытия, кроме сборных ж/б плит. Чердачное перекрытие - деревянные балки. Крыша четырехскатная. Кровля – металлочерепица. Окна — металлопластиковые
Генплан застройки участка / Паспорт проекта 7000 руб / 10000 руб
Инженерный раздел (полный) 96950 руб (138500 руб)
Смета на строительство 69250 руб
Теплотехнический расчет материалов стен Бесплатно
Стоимость проекта со незначительнми изменениями 83050 руб
Стоимость проекта со средними изменениями* 103900 руб
Стоимость проекта со значительными изменениями** 109400 руб

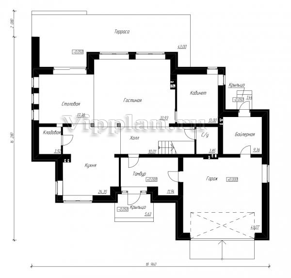
План первого этажа


Тамбур — 11,94 кв м
Холл — 10,01 кв м
Кухня — 24,35 кв м
Столовая — 17,38 кв м
Кладовая — 3,92 кв м
Гостиная — 33,93 кв м
Кабинет — 13 кв м
С/у — 3,85 кв м
Бойлерная — 9,36 кв м
Гараж — 41,07 кв м

Проект комфортного двухэтажного дома

Проект комфортного двухэтажного дома

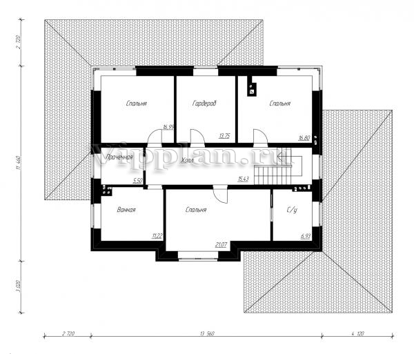
План второго этажа


Холл — 15,43 кв м
Спальня — 16,99 кв м
Гардероб — 13,75 кв м
Спальня — 16,8 кв м
Прачечная — 5,5 кв м
Ванная — 11,22 кв м
Спальня — 21,07 кв м
С/у — 6,93 кв м
Проект комфортного двухэтажного дома Проект комфортного двухэтажного дома Проект комфортного двухэтажного дома Проект комфортного двухэтажного дома

Модификации проектов

Внесение изменений и привязка к участку строительства

В любой из проектов от компании VIPplan - Латвия по вашему желанию могут быть внесены изменения в материалы стен, материалы наружной отделки дома, а также будет произведена адаптация проекта под конкретный регион строительства (с учетом грунтов региона, геологических особенностей вашего участка и местных климатических условий) - БЕСПЛАТНО !!! (кроме проектов со скидкой и проектов наших партнеров).

Любой из проектов, размещенных на сайте lv.vipplan.ru мы можем выполнить из требуемых вам строительных материалов: ячеистый бетон (газобетон, пеноблок), керамоблок, кирпич, шлакоблок, бетонный блок, дерево (брус, клееный брус), каркасная технология (деревянный каркас, металлокаркас (ЛСТК)).

Фасад дома и его наружную отделку так же возможно выполнить с применением различных облицовочных материалов: структурной штукатурки, (с утеплителем и без), сайдингом (пластиковый или металлосайдинг), фиброплитами, кирпича.

 
6 Избранные
проекты

Доставка проектов по России: Москва (Московская область), Санкт-Петербург (Ленинградская область), Краснодар, Ростов-на-Дону, Ставрополь, Сочи, Волгоград, Новосибирск, Белгород, Брянск, Воронеж, Саратов, Хабаровск, Астрахань, Нальчик, Владикавказ, Екатеринбург, Тюмень, Самара, Нижний Новгород, Казань, Пермь, Уфа, Челябинск, Красноярск, Ханты-Мансийск, Иркутск, Курган, Оренбург, Омск, Томск, Барнаул, Новокузнецк, Кемерово, Абакан, Чита, Якутск, Южно-Сахалинск, Петропавловск-Камчатский и страны ближнего зарубежья: Белоруссия, Украина, Казахстан